0
3 Pièce(s)
2 Chambre(s)

Superbe T3 traversant exposé sud - CASTRIES - à vendre

Castries (34160)
Réf : CDI180-10-5

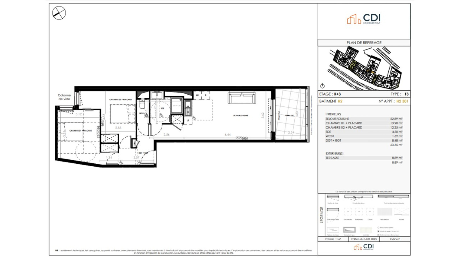
CDI NEUF vous présente ce superbe T3 traversant exposé sud avec un cellier de 6m² au centre de Castries.

Située à une vingtaine de kilomètres au nord-est de Montpellier, la charmante ville de Castries se distingue par son riche patrimoine historique, prêt à se révéler à ceux qui prennent le temps de l'explorer. Le majestueux château, entouré de magnifiques jardins à la française, l'église et l'imposant aqueduc constituent les éléments les plus remarquables de ce passé historique.

Au nord, Castries bénéficie d'un superbe environnement naturel composé de vignes, de bois et de garrigues, offrant une opportunité à tous d'explorer l'amour pour la nature. La ville est accessible au sud-est via l'A709 et le TER, assurant ainsi des liaisons efficaces avec les communes environnantes de Baillargues et de Castelnau-le-Lez.

Ce T3 de 72.4 de surface totale privative est situé le long des rives de la Cadoule, dans un programme neuf qui représente un nouvel espace urbain, un véritable havre de paix et de sérénité, avec une livraison prévue au 4ème trimestre 2025.

Toutes les commodités à proximité :

- écoles de la maternelle au collège

- commerces : pharmacie, banque, coiffeur, épiceries...

- transport : ligne n°2

Pour plus de précisions, n'hésitez pas à nous contacter au 04 67 12 38 30

Ce bien vous intéresse ?
Fieldset par défaut
Fieldset par défaut
Validation

* Champs obligatoires

Contacter l'agence
Validation
Les informations recueillies sur ce formulaire sont enregistrées dans un fichier informatisé par La Boite Immo agissant comme Sous-traitant du traitement pour la gestion de la clientèle/prospects de l'Agence / du Réseau qui reste Responsable du Traitement de vos Données personnelles. La base légale du traitement repose sur l'intérêt légitime de l'Agence / du Réseau. Elles sont conservées jusqu'à demande de suppression et sont destinées à l'Agence / au Réseau. Conformément à la loi « informatique et libertés », vous disposez des droits d’accès, de rectification, d’effacement, d’opposition, de limitation et de portabilité de vos données. Vous pouvez retirer votre consentement à tout moment en contactant directement l’Agence / Le Réseau. Consultez le site https://cnil.fr/fr pour plus d’informations sur vos droits. Si vous estimez, après avoir contacté l'Agence / le Réseau, que vos droits « Informatique et Libertés » ne sont pas respectés, vous pouvez adresser une réclamation à la CNIL. Nous vous informons de l’existence de la liste d'opposition au démarchage téléphonique « Bloctel », sur laquelle vous pouvez vous inscrire ici : https://www.bloctel.gouv.fr Dans le cadre de la protection des Données personnelles, nous vous invitons à ne pas inscrire de Données sensibles dans le champ de saisie libre.
Ce site est protégé par reCAPTCHA, les Politiques de Confidentialité et les Conditions d'Utilisation de Google s'appliquent.

En Bref

Code postal 34160
Surface habitable (m²) 63,20 m²
Nombre de chambre(s) 2
Nombre de pièces 3
Etage 3
Ascenseur OUI
Nb de salle d'eau 1
Interphone OUI
Terrasse OUI
Exposition Sud

Infos financières

Prix de vente honoraires TTC inclus 263 000 €

Energie

Energie
DPE
GES